Espace propriétaire
fr

Votre recherche

Nîmes (30000)

3 pièces - 75 m²

Maison de ville avec grande terrasse

189 000 €
Ref : 5244
A propos de ce bien

Quartier route de Beaucaire - À deux pas de l’effervescence nîmoise mais à l’abri de son agitation, cette jolie maison de ville T3 d'u peu plus de 70m² habitables (80m² au sol) attend son nouveau propriétaire. Ici, le calme et l'ensoleillement sont rois, pas de vis-à-vis pour gâcher vos petits-déjeuners en terrasse ou vos soirées d’été : ~23m² de terrasse privative, baignée de soleil et sans vis-à-vis, vous promettent une intimité rare en ville !

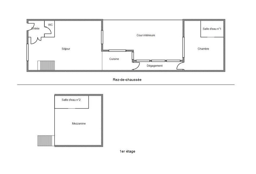
La maison développe un espace de vie optimisé, avec l'essentiel de la surface de plain-pied ou presque. Elle se compose :

- Rez-de-chaussée : Une entrée pratique avec WC, puis une grande pièce de vie lumineuse (salon & cuisine ouverte) avec une cheminée. Un couloir dessert une chambre spacieuse, ouverte sur la terrasse, avec sa salle de douche privée.
- À l’étage : Une deuxième chambre mansardée, elle aussi dotée de sa propre salle de douche/WC.

Maison en bon état, proche des commerces et des transports en communs, prête à accueillir vos projets !

Descriptif de ce bien
Général
Code postal 30000
surface terrain 110 m²
Surface loi Carrez (m²) 70 m²
Nombre de chambre(s) 2
Nombre de pièces 3
Nombre de niveaux 2
Détails
Nb de salle d'eau 2
Type de cuisine SEMI-EQUIPEE
Mode de chauffage Electrique
Type de chauffage Convecteur
Format de chauffage Individuel
Terrasse OUI
Murs mitoyens 2
Exposition Est-Ouest
Année de construction 1890
Terrain piscinable NON
Terrain arboré NON
Financier
Prix de vente 189 000 €
Les honoraires d'agence seront intégralement à la charge du vendeur  
Taxe foncière annuelle 1 300 €
Energie
DPE GES
Contacter pour ce bien
L'agence
Téléphone 04 66 27 07 16
Adresse
12 bd Alphonse Daudet 30000 Nîmes

* Champ obligatoire

Les informations recueillies sur ce formulaire sont enregistrées dans un fichier informatisé par La Boite Immo agissant comme Sous-traitant du traitement pour la gestion de la clientèle/prospects de l'Agence / du Réseau qui reste Responsable du Traitement de vos Données personnelles. La base légale du traitement repose sur l'intérêt légitime de l'Agence / du Réseau. Elles sont conservées jusqu'à demande de suppression et sont destinées à l'Agence / au Réseau. Conformément à la loi « informatique et libertés », vous disposez des droits d’accès, de rectification, d’effacement, d’opposition, de limitation et de portabilité de vos données. Vous pouvez retirer votre consentement à tout moment en contactant directement l’Agence / Le Réseau. Consultez le site https://cnil.fr/fr pour plus d’informations sur vos droits. Si vous estimez, après avoir contacté l'Agence / le Réseau, que vos droits « Informatique et Libertés » ne sont pas respectés, vous pouvez adresser une réclamation à la CNIL. Nous vous informons de l’existence de la liste d'opposition au démarchage téléphonique « Bloctel », sur laquelle vous pouvez vous inscrire ici : https://www.bloctel.gouv.fr Dans le cadre de la protection des Données personnelles, nous vous invitons à ne pas inscrire de Données sensibles dans le champ de saisie libre.
Ce site est protégé par reCAPTCHA, les Politiques de Confidentialité et les Conditions d'Utilisation de Google s'appliquent.

Découvrir nos outils