Espace propriétaire
fr

Votre recherche

Nîmes (30000)

3 pièces - 78 m²

Appartement T3 avec cachet de l’ancien – Maison Carrée

198 000 €
Ref : 5107 - 01
A propos de ce bien

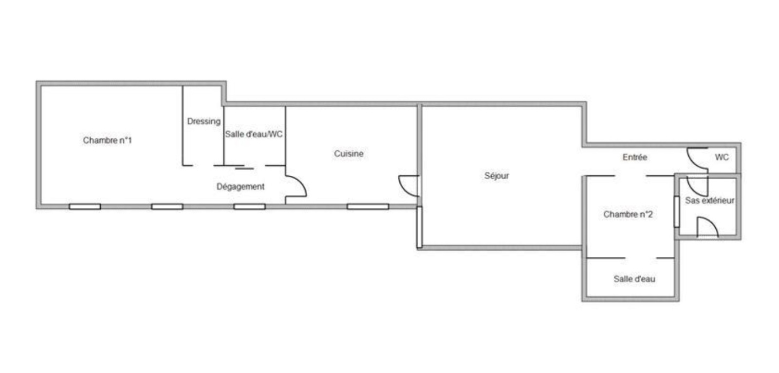
Nîmes rue de la Maison Carrée, appartement T3 situé en plein coeur du quartier historique. Avec un emplacement priviligié à seulement quelques pas de la célèbre Maison Carrée. Cet appartement fait partie d'un immeuble ancien au charme indéniable, au calme bien qu'il soit central. De 78 m2 au 1er étage avec un accés par un petit patio privatif, une entrée, une belle pièce de vie lumineuse avec une grande hauteur sous plafond, une cuisine séparée, une première chambre avec salle d'eau, une deuxième chambre (suite parentale de 25 m2 dotée d'une salle d'eau), wc et d'un dressing. Les grandes fenêtres de cet appartement offrent une vue sur un jardin exterieur, ajoutant une touche de verdure et de tranquilité. Cet appartement conserve le charme de l'ancien avec ses tomettes d'origine et ses élégantes cheminées, prét a etre mis en valeur aprés quelques travaux de rafraichissement. Il se situe dans un quartier prestigieux de Nimes, à proximité immédiate des commerces, restaurants, et transports en commun. C'est une opportunité pour les amateurs de biens immobiliers de caractère dans le centre historique.

Descriptif de ce bien
Général
Code postal 30000
Surface loi Carrez (m²) 77,73 m²
Nombre de chambre(s) 2
Nombre de pièces 3
Etage 1
Détails
Nb de salle d'eau 2
Cuisine Séparée
Type de cuisine Equipée
Cave OUI
Surface cave (m²) 10
Année de construction 1800
Quartier CENTRE VILLE, Maison Carrée
Composition
Rez de chaussée
SAS EXTERIEUR 4.40 m²

entrée 4.06 m²

cuisine 14.24 m²

salon/sejour 20.02 m²

suite 25.11 m²

chambre 11.45 m²

entrée 4.06 m²

degagement 1.70 m²

WC 1.15 m²

Financier
Prix de vente honoraires TTC inclus 198 000 €
Charges 77 €
Taxe foncière annuelle 876 €
Energie
DPE GES
Contacter pour ce bien
L'agence
Téléphone 04 66 27 07 16
Adresse
12 bd Alphonse Daudet 30000 Nîmes

* Champ obligatoire

Les informations recueillies sur ce formulaire sont enregistrées dans un fichier informatisé par La Boite Immo agissant comme Sous-traitant du traitement pour la gestion de la clientèle/prospects de l'Agence / du Réseau qui reste Responsable du Traitement de vos Données personnelles. La base légale du traitement repose sur l'intérêt légitime de l'Agence / du Réseau. Elles sont conservées jusqu'à demande de suppression et sont destinées à l'Agence / au Réseau. Conformément à la loi « informatique et libertés », vous disposez des droits d’accès, de rectification, d’effacement, d’opposition, de limitation et de portabilité de vos données. Vous pouvez retirer votre consentement à tout moment en contactant directement l’Agence / Le Réseau. Consultez le site https://cnil.fr/fr pour plus d’informations sur vos droits. Si vous estimez, après avoir contacté l'Agence / le Réseau, que vos droits « Informatique et Libertés » ne sont pas respectés, vous pouvez adresser une réclamation à la CNIL. Nous vous informons de l’existence de la liste d'opposition au démarchage téléphonique « Bloctel », sur laquelle vous pouvez vous inscrire ici : https://www.bloctel.gouv.fr Dans le cadre de la protection des Données personnelles, nous vous invitons à ne pas inscrire de Données sensibles dans le champ de saisie libre.
Ce site est protégé par reCAPTCHA, les Politiques de Confidentialité et les Conditions d'Utilisation de Google s'appliquent.

Découvrir nos outils